Logements Sevran

sevran (91)

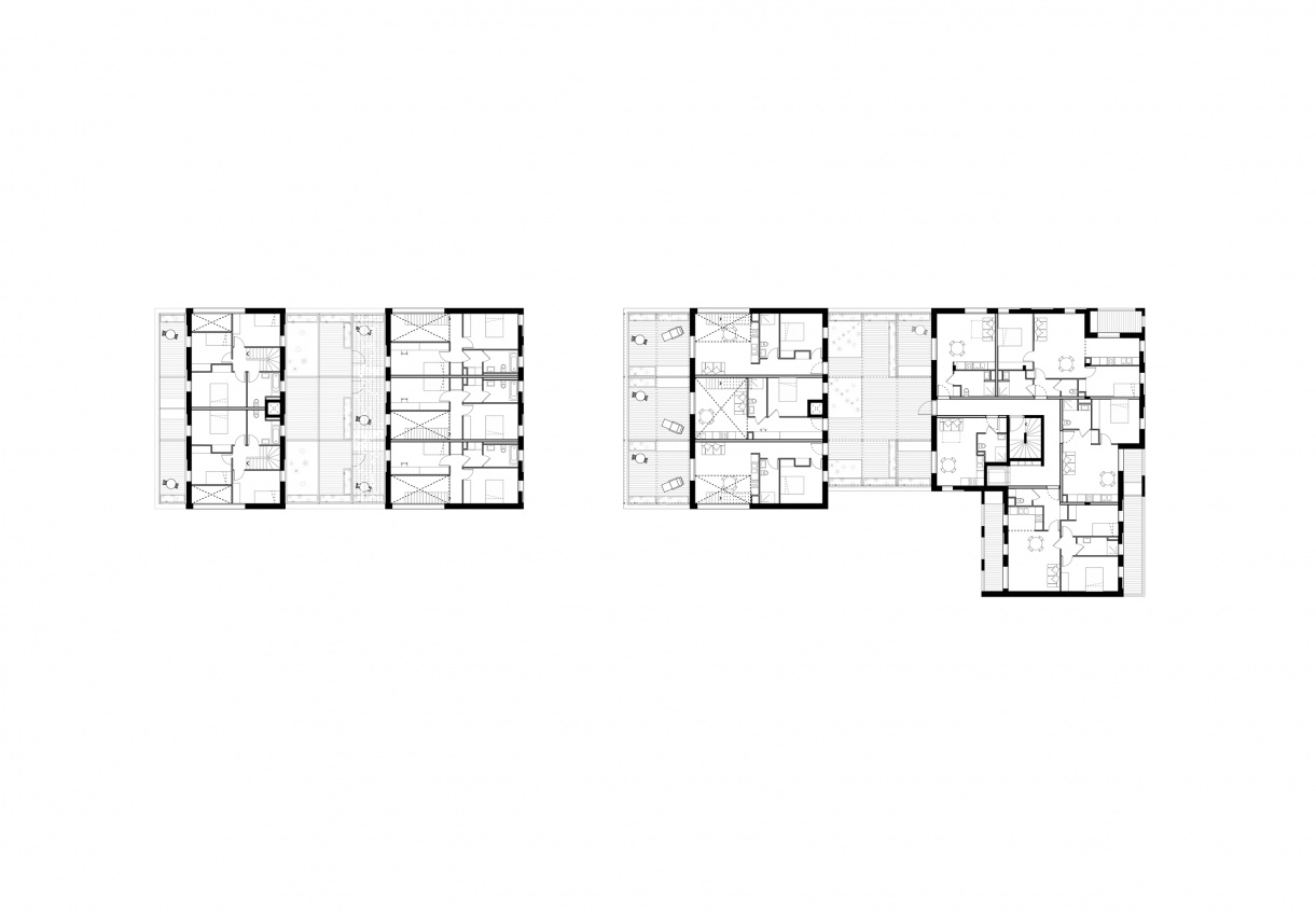
construction de 50 logements à sevran
Le projet s'organise selon une typologie hybride entre logements collectifs et logements superposés, permettant un usage semi-privatif et privatif des toitures terrasses.

maitre d’ouvrage : i3f
concours 2025
3 308 m² sdp logements + 308 m² sdp parties communes
objectif label biosourcé niveau 2

équipe :
bet tce : ana ingénierie
paysagiste : wald

directeur de projet : maxence fougère
cheffe de projet : martina nuzzo